N

ews center

新聞中心

多線螺紋的數控加工原理與方法

發布時間:2024-12-14 發布者:本站 瀏覽次數:1725
螺紋有單線和多線之分,沿一條螺旋線形成的螺紋稱為單線螺紋,沿兩條或兩條以上螺旋線形成的螺紋稱為雙線或多線螺紋。在普通車床加工多線螺紋時,常采用軸向分線法和圓周分線法。

軸向分線法是指當第一條螺旋線加工完畢后,絲杠螺母保持接通,將刀架縱向前移或后移一個螺距后加工第二條螺旋線、第三條螺旋線……這種方法需要精確控制車刀沿軸向移動的距離,以達到分線目的。具體控制方法主要有:(1)小滑板刻度分線法,這種方法雖然比較簡便,但分線精度不高。因為受小滑板絲杠間隙的影響以及當螺距并非刻度對應移動量的整倍數時所存在的主觀估算誤差,所以難免會產生分線誤差。(2)百分表、量塊分線法,雖然分線精度高一些,但其準備工作繁瑣,加工效率低,也容易產生分線誤差。

640.png
圓周分線法是根據螺旋線在圓周上等距分布的特點,即當車好一條螺旋線后,脫開工件與絲杠之間的傳動鏈,使主軸旋轉一個角度α(α=3600/線數),然后再聯接工件與絲杠之間的傳動鏈,進行下一條螺旋線的車削。具體的加工方法主要有:(1)利用三爪、四爪卡盤分線法,這種方法分線簡便、快捷,但分線精度較低且分線范圍較窄。(2)利用交換齒輪分線法,這種方法分線精度較高,但操作麻煩,且只有當車床交換齒輪的齒數為螺紋線數的整倍數時才行。(3)利用多孔撥盤分線法,雖然分線精度稍高一些,但需增加多孔撥盤,且準備工作多,加工效率低,加工成本高[1]
從以上可知,在普通車床上加工多線螺紋,其加工過程比較繁瑣,而且主軸轉速又受到螺紋導程的限制,其切削速度無法得到提高,加工效率低;加之螺紋在分線過程中容易出現誤差,加工精度較低,這會影響螺紋的工作性能,降低其使用壽命。

隨著科學技術的不斷進步,在制造業信息化飛速發展的今天,應用數控機床加工多線螺紋可以解決普通機床加工帶來的諸多問題。數控車床加工多線螺紋與普通車床加工原理基本相同,其加工方法通常有通過改變螺紋切削起始角度和通過改變螺紋軸向切削起點等兩種。在FANUC系統中,多線螺紋編程功能指令有G32、G92、G76等三條。其中G32為單行程螺紋切削指令,編程任務量大,程序較復雜;指令G92可以實現簡單螺紋切削循環,使程序段大為簡化,但要求工件坯料預先經過粗加工;而指令G76為螺紋切削復合循環指令,它克服了指令G92的缺點,可以將工件從坯料到成品螺紋一次性加工完成,且程序簡捷,可節省編程與加工時間。2 通過改變螺紋切削初始角加工多線螺紋
2.1  方法原理
改變螺紋切削初始角加工多線螺紋是根據螺紋的線數沿圓周方向進行分度,每加工完一線螺紋后,主軸旋轉一定角度,而起刀點軸向位置不變,接著進行下一線螺紋的加工。
2.2  應用G32指令加工多線螺紋
2.2.1  指令格式
G32X(U)__Z(W)__F__Q__;


式中:
X、Z——絕對尺寸編程時螺紋的終點坐標;
U、W—— 增量尺寸編程時螺紋的終點坐標;
F——螺紋導程(若為單線螺紋,則為螺紋的螺距);
Q——螺紋起始角,該值為不帶小數點的非模態值,即增量為0.0010;
如起始角為1800,則表示為Q180000(單線螺紋可以不用指定,此時該值為零);
起始角Q的范圍為0~360000之間,如果指定了大于360000的值,則按360000(3600)計算。
2.2.2  應用舉例
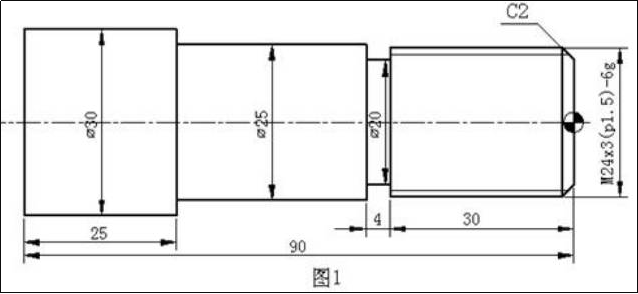
例1,用G32指令編制如圖1所示零件上的螺紋加工程序。
640 (1).png
工藝分析:
該零件上有雙線螺紋M24X3(P1.5)—6g,螺距為1.5mm導程為3mm。編程原點設在工件右端面中心。
切削參數確定:
查車削手冊,確定切深量(半徑值)為0.974mm,進刀次數4次,每刀背吃刀量(直徑值)分別為0.8mm、0.6mm、0.4mm、0.16mm。
S1(升速進刀段長度)=4mm,S2(減速退刀段長度)=2mm。
設第1線螺紋的起始角為00,則第2線螺紋的起始角為3600/2=1800
參考程序如下:
……;
G00X30.0Z4.0;
X23.2;
G32Z-32.0F3.0Q0;     /第1線螺紋第1刀
G00X30.0Z4.0;
X22.6;
G32Z-32.0F3.0Q0;  /第1線螺紋第2刀
……;
G00 X30.0Z4.0;
X22.04;
G32Z-32.0F3.0Q0;    /第1線螺紋第4刀
G00X30.0Z4.0;
X23.2;
G32Z-32.0F3.0Q180000;/第2線螺紋第1刀
G00X30.0Z4.0;
X22.6;
G32Z-32.0F3.0Q180000;/第2線螺紋第2刀
……;
G00X30.0Z4.0;
X22.04;
G32Z-32.0F3.0Q180000;/第2線螺紋第4刀
G00X30.0;
X100.0Z100.0;
M05;
M30;
2.3  應用G92指令加工多線螺紋
2.3.1  指令格式
G92X(U)__Z(W)__F__Q__;
式中各參數含義與1.2.1相同
2.3.2  應用舉例
例2,用G92指令編制如圖2[2]所示零件上的螺紋加工程序。
640 (2).png
工藝分析:
該零件上有多線螺紋M30X3(P1.5)—6G,螺距為1.5mm,導程為3mm。編程原點設在工件左端面中心。
切削參數確定(略)
參考程序如下:
……;
G92X29.2Z18.5F3.0;  /雙線螺紋切削循環1,背吃刀量0.8mm
X29.2Q180000;
X28.6F3.0;          /雙線螺紋切削循環2,背吃刀量0.6mm
X28.6Q180000;
X28.2F3.0;          /雙線螺紋切削循環3,背吃刀量0.4mm
X28.2Q180000;
X28.04F3.0;         /雙線螺紋切削循環4,背吃刀量0.16mm
X28.04Q180000;
M05;
M30;


  • 電話:

    028 - 87805463
  • 傳真:

    4008266163-60799
  • 郵箱:

    594522037@qq.com
  • 地址:

    成都市郫都區現代工業港北片區龔家碾路 169號盛世春天5號樓